Ви дивилися
Каталог товарів
Кабінет покупця
+380672339740
Наша адреса
м.Київ, вул. Пластова, 18, каб.205, 2поверх
Телефони
Графік роботи
  • Пн - Пт
  • 09:00 - 18:00
E-mail
Ми в соцмережах
Перейти до контактів
0 0
Каталог
Головна
Дивилися
20
Закладки
0
Порівняти
0
Контакти

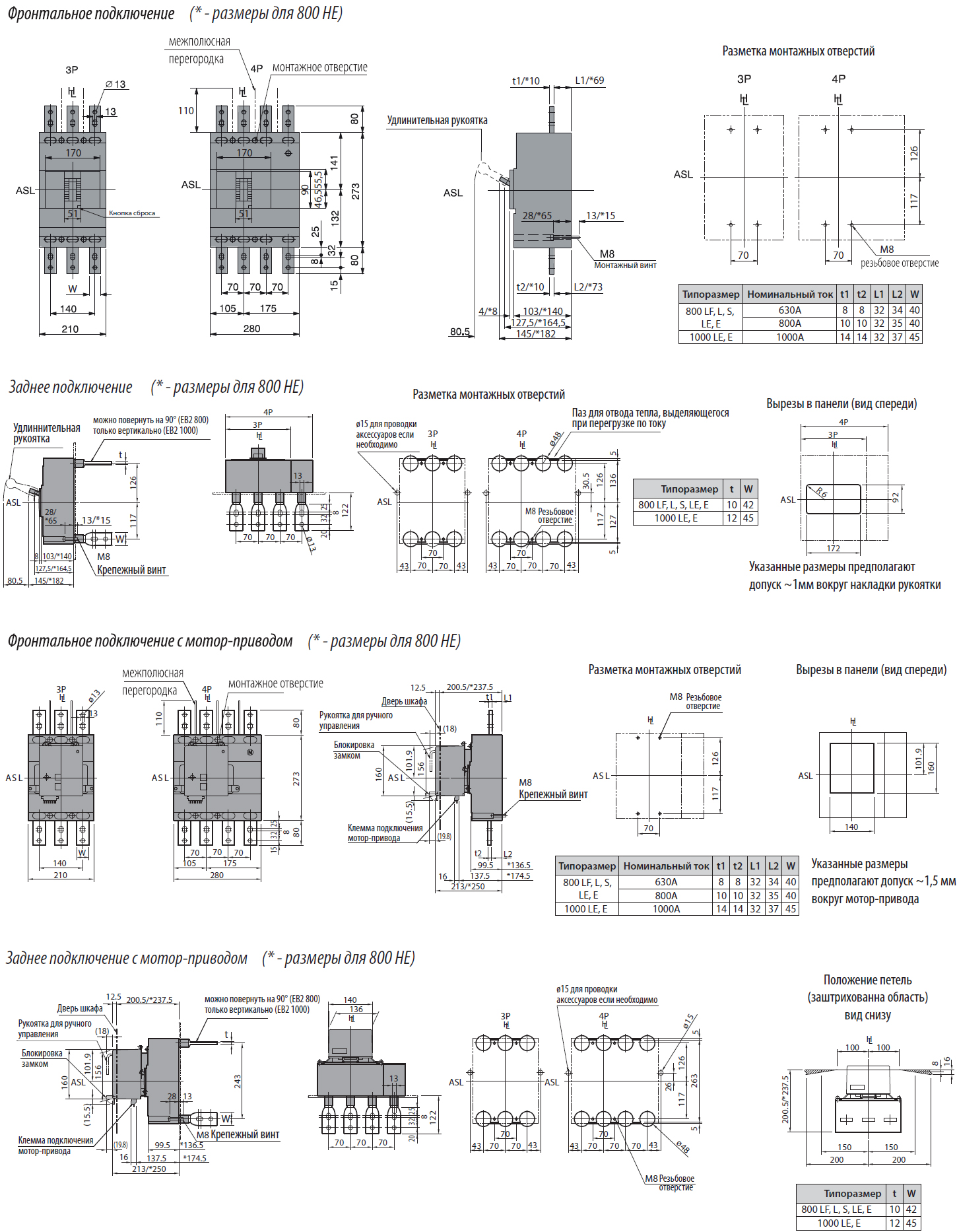
Авт. вимикач EB2 800/4S 630A (50kA, (0.63-1)In/(5-10)In) 4P

Виробник: ETI Код товару: 4672162
Все про товар
Опис
Характеристики
Під замовлення (від 3-х тижнів)
73 941.02 грн
EAN:3838895664826 
logis_net_depth:143 mm
logis_net_height:433 mm
logis_net_width:280 mm
Є покажчик розчеплення:Так
Авт. вимикач EB2 800/4S 630A (50kA, (0.63-1)In/(5-10)In) 4P
73 941.02 грн
Характеристики
EAN
3838895664826 
logis_net_depth
143 mm
logis_net_height
433 mm
logis_net_width
280 mm
Є покажчик розчеплення
Так
Артикул
4672162
Вага
11.5 kg
Вбудований моторний привід
Ні
Група каталогу
EB2
Діапазон налаштування пристрою захисту від перевантаження
396.9…630A
Діапазон регулювання спрацьовування без затримки розчеплювача коротк. замикання
3150…6300A
кількість
Кількість полюсів
4
Категорія
Power circuit-breaker for trafo/generator/installation prot.
Класифікація
EC000228
Конструкція приладу
Вбудований пристрій стаціонарного виконання
Моторний привід опціонально
Так
Назва
EB2 800/4S 630A 4p
Номінальна імпульсна напруга Uimp (kV)
8
Номінальна вимикаюча здатність при короткому замиканні при 415V Icu /Ics (kA)
50/50
Номінальна гранична найбільша вимикаюча здатність Icu при 400 В, 50 Гц
50kA
Номінальна напруга ізоляції (V)
800
Номінальна робоча напруга (V AC)
690V
Номінальна робоча напруга (V DC)
250V
Номінальний струм (A)
630
Номінальний струм з довгим навантаженням Iu
630A
Регульований або фіксований
обираєма
Регулювання електромагнітного захисту
5-10
Регулювання теплового захисту
0,63-1
Стандарт
60947
Ступінь захисту IP
IP20
Тариф митниці
85362090 
Тип елемента керування
Важільний
Тип з'єднання
переднє підключення
Тип приєднання головного електричного ланцюга
Гвинтове з`єднання
Транспортувальне пакування
70 
Ви дивились
Запобіжник VVC3 7,2kV 16A 63kA (192мм, 50N)
Код товару: 4220008
Під замовлення (від 3-х тижнів)
2 940.02 грн
Запобіжник VVC3 12kV 100A 63kA (292мм, 50N)
Код товару: 4230017
Під замовлення (від 3-х тижнів)
4 900.02 грн
Монтажна панель металева KVR-MMP 80-53 (770х494)
Код товару: 1602223
Під замовлення (від 3-х тижнів)
1 548.42 грн
Шафа поліестерова KVR-D 80-80-25 S (В848хШ794хГ250, дводверна, похилий дах)
Код товару: 1602135
Під замовлення (від 3-х тижнів)
12 740.02 грн
Запобіжник VVC3 24kV 6,3A 63kA (442мм, 50N)
Код товару: 4250006
Під замовлення (від 3-х тижнів)
4 067.02 грн
Шина живлення IZ 16/2F/54 (16мм2, 2P, 1м, Fork, 54mod.)
Код товару: 2921067
В наявності
1 264.22 грн
Шафа поліестерова KVR-D 50-66-25 SR (В539хШ662хГ250, дводверна, асиметр., права, похилий дах)
Код товару: 1602143
Під замовлення (від 3-х тижнів)
7 889.02 грн
Диф. автоматичний вимикач KZS-4M 3p+N B 10/0,03 тип AC (6kA)
Код товару: 2174002
Під замовлення (від 3-х тижнів)
4 370.82 грн
Шафа поліестерова KVR-D 40-80-25 S (В436хШ794хГ250, дводверна, похилий дах)
Код товару: 1602129
Під замовлення (від 3-х тижнів)
8 624.02 грн
Розподільчий щит з роз'ємами EDS4 2-2/2-5 32 (Роз'єм 32A/5P-2, Schuko-2, АВ: C16/1-1, C32/3-1)
Код товару: 4483101
Під замовлення (від 3-х тижнів)
4 655.02 грн