Ви дивилися
Каталог товарів
Кабінет покупця
+380672339740
Наша адреса
м.Київ, вул. Пластова, 18, каб.205, 2поверх
Телефони
Графік роботи
  • Пн - Пт
  • 09:00 - 18:00
E-mail
Ми в соцмережах
Перейти до контактів
0 0
Каталог
Головна
Дивилися
20
Закладки
0
Порівняти
0
Контакти

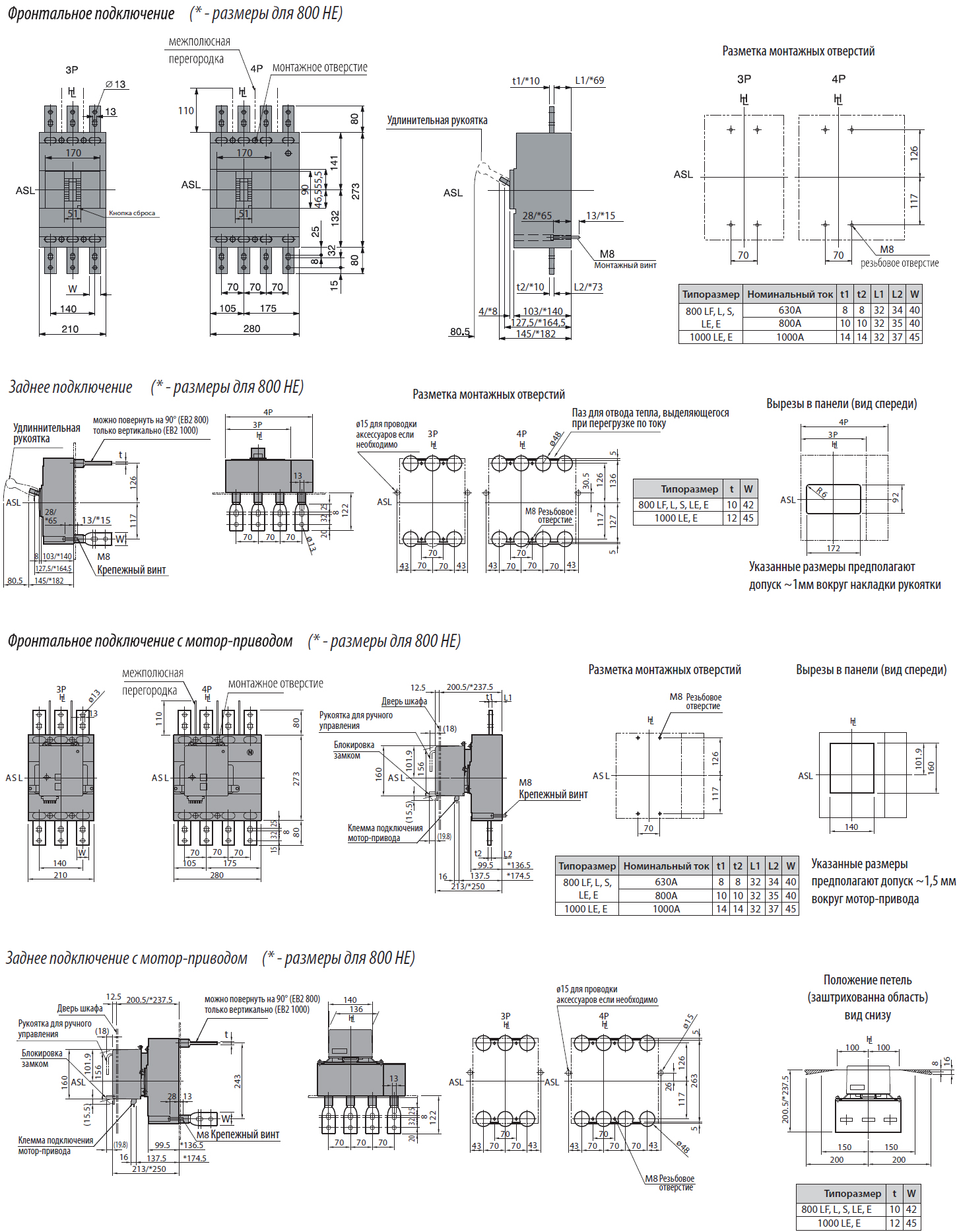
Авт. вимикач EB2 800/4LF 800A (36kA, фікс./(5-10)In) 4P

Виробник: ETI Код товару: 4672205
Все про товар
Опис
Характеристики
Під замовлення (від 3-х тижнів)
44 443.02 грн
EAN:3838895747352 
logis_net_depth:143 mm
logis_net_height:433 mm
logis_net_width:280 mm
Є покажчик розчеплення:Так
Авт. вимикач EB2 800/4LF 800A (36kA, фікс./(5-10)In) 4P
44 443.02 грн
Характеристики
EAN
3838895747352 
logis_net_depth
143 mm
logis_net_height
433 mm
logis_net_width
280 mm
Є покажчик розчеплення
Так
Артикул
4672205
Вага
11.5 kg
Вбудований моторний привід
Ні
Група каталогу
EB2
Діапазон налаштування пристрою захисту від перевантаження
800…800A
Діапазон регулювання спрацьовування без затримки розчеплювача коротк. замикання
4000…8000A
кількість
Кількість полюсів
4
Категорія
Power circuit-breaker for trafo/generator/installation prot.
Класифікація
EC000228
Конструкція приладу
Вбудований пристрій стаціонарного виконання
Моторний привід опціонально
Так
Назва
EB2 800/4LF 800A 4p
Номінальна імпульсна напруга Uimp (kV)
8
Номінальна вимикаюча здатність при короткому замиканні при 415V Icu /Ics (kA)
36/36
Номінальна гранична найбільша вимикаюча здатність Icu при 400 В, 50 Гц
36/36kA
Номінальна напруга ізоляції (V)
800
Номінальна робоча напруга (V AC)
690V
Номінальна робоча напруга (V DC)
250V
Номінальний струм (A)
800
Номінальний струм з довгим навантаженням Iu
800A
Регульований або фіксований
фіксований
Регулювання електромагнітного захисту
5-10
Регулювання теплового захисту
fixed
Стандарт
60947
Ступінь захисту IP
IP20
Тариф митниці
85362090 
Тип елемента керування
Клавіша
Тип з'єднання
переднє підключення
Тип приєднання головного електричного ланцюга
Гвинтове з`єднання
Транспортувальне пакування
50 
Ви дивились
Авт. вимикач EB2S 160/3SA 100A (25kA, (0.63-1)In/фікс.) 3P
Код товару: 4671903
Під замовлення (від 3-х тижнів)
7 154.02 грн
Авт. вимикач EB2 800/4L 630A (36kA, (0.63-1)In/(5-10)In) 4P
Код товару: 4672152
Під замовлення (від 3-х тижнів)
70 168.02 грн
Авт. вимикач EB2S 160/3SA 80A (25kA, (0.63-1)In/фікс.) 3P
Код товару: 4671902
Під замовлення (від 3-х тижнів)
7 056.02 грн
Авт. вимикач EB 2S 160/1LF 50A (25kA, фікс./фікс.) 1P
Код товару: 4671006
Під замовлення (від 3-х тижнів)
3 351.62 грн
Авт. вимикач EB2S 160/3HF 32A (40kA, фікс./фікс.) 3P
Код товару: 4671856
Під замовлення (від 3-х тижнів)
5 537.02 грн
Авт. вимикач EB2R-M 250/4L 250A (25kA, (0.63-1)In/(10)In, с блоком ПЗВ) 4P
Код товару: 4671588
Під замовлення (від 3-х тижнів)
64 288.02 грн
Авт. вимикач NBS-E 1600/3S LCD 1600A (50kA, (0.4-1)In/(1.5-12)In) 3P
Код товару: 4673203
Під замовлення (від 3-х тижнів)
77 910.02 грн
Авт. вимикач EB2S 160/3LA 25A (16kA, (0.63-1)In/фікс.) 3P
Код товару: 4671879
Під замовлення (від 3-х тижнів)
5 929.02 грн
Авт. вимикач EB2S 160/4LA 100A (16kA, (0.63-1)In/фікс.) 4P
Код товару: 4671893
Під замовлення (від 3-х тижнів)
8 526.02 грн
Авт. вимикач EB2R-M 250/4L 160A (25kA, (0.63-1)In/(13)In, с блоком ПЗВ) 4P
Код товару: 4671587
Під замовлення (від 3-х тижнів)
64 288.02 грн