Ви дивилися
Каталог товарів
Кабінет покупця
+380672339740
Наша адреса
м.Київ, вул. Пластова, 18, каб.205, 2поверх
Телефони
Графік роботи
  • Пн - Пт
  • 09:00 - 18:00
E-mail
Ми в соцмережах
Перейти до контактів
0 0
Каталог
Головна
Дивилися
20
Закладки
0
Порівняти
0
Контакти

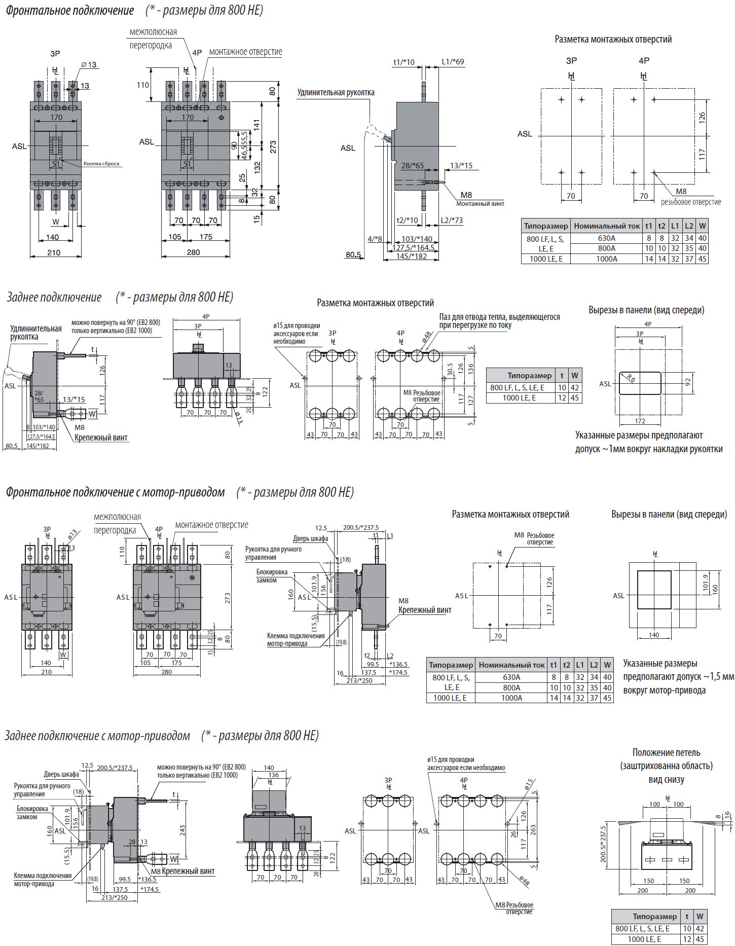
Авт. вимикач EB2 800/4L 800A (36kA, (0.63-1)In/(5-10)In) 4P

Виробник: ETI Код товару: 4672153
Все про товар
Опис
Характеристики
Під замовлення (від 3-х тижнів)
73 941.02 грн
EAN:3838895664796 
logis_net_depth:143 mm
logis_net_height:433 mm
logis_net_width:280 mm
Є покажчик розчеплення:Так
Авт. вимикач EB2 800/4L 800A (36kA, (0.63-1)In/(5-10)In) 4P
73 941.02 грн
Характеристики
EAN
3838895664796 
logis_net_depth
143 mm
logis_net_height
433 mm
logis_net_width
280 mm
Є покажчик розчеплення
Так
Артикул
4672153
Вага
11.5 kg
Вбудований моторний привід
Ні
Група каталогу
EB2
Діапазон налаштування пристрою захисту від перевантаження
504…800A
Діапазон регулювання спрацьовування без затримки розчеплювача коротк. замикання
2520…8000A
кількість
Кількість полюсів
4
Категорія
Power circuit-breaker for trafo/generator/installation prot.
Класифікація
EC000228
Конструкція приладу
Вбудований пристрій стаціонарного виконання
Моторний привід опціонально
Так
Назва
EB2 800/4L 800A 4p
Номінальна імпульсна напруга Uimp (kV)
8
Номінальна вимикаюча здатність при короткому замиканні при 415V Icu /Ics (kA)
36/36
Номінальна гранична найбільша вимикаюча здатність Icu при 400 В, 50 Гц
36/36kA
Номінальна напруга ізоляції (V)
800
Номінальна робоча напруга (V AC)
690V
Номінальна робоча напруга (V DC)
250V
Номінальний струм (A)
800
Номінальний струм з довгим навантаженням Iu
800A
Регульований або фіксований
обираєма
Регулювання електромагнітного захисту
5-10
Регулювання теплового захисту
0,63-1
Стандарт
60947
Ступінь захисту IP
IP20
Тариф митниці
85362090 
Тип елемента керування
Клавіша
Тип з'єднання
переднє підключення
Тип приєднання головного електричного ланцюга
Гвинтове з`єднання
Транспортувальне пакування
70 
Ви дивились
Мікс верт.: 2-кл.вим.+ 1-на розетка з з/к VRHP-2sd (біла/прозора кришка)
Код товару: 4668028
Під замовлення (від 3-х тижнів)
343.02 грн
Авт. вимикач EB2S 160/3HF 40A (40kA, фікс./фікс.) 3P
Код товару: 4671857
Під замовлення (від 3-х тижнів)
5 537.02 грн
Авт. вимикач NBS-E 1600/3S LCD 800A (50kA, (0.4-1)In/(1.5-12)In) 3P
Код товару: 4673200
Під замовлення (від 3-х тижнів)
73 990.02 грн
Авт. вимикач EB2S 160/3SA 40A (25kA, (0.63-1)In/фікс.) 3P
Код товару: 4671900
Під замовлення (від 3-х тижнів)
6 860.02 грн
Мікс верт.: Сходов.вим.+ 1-на розетка з з/к VRHP-3s (біла/біла кришка)
Код товару: 4668029
Під замовлення (від 3-х тижнів)
338.12 грн
Авт. вимикач EB2 800/4LF 800A (36kA, фікс./(5-10)In) 4P
Код товару: 4672205
Під замовлення (від 3-х тижнів)
44 443.02 грн
Авт. вимикач EB2S 160/3SA 100A (25kA, (0.63-1)In/фікс.) 3P
Код товару: 4671903
Під замовлення (від 3-х тижнів)
7 154.02 грн
Авт. вимикач EB2 800/4L 630A (36kA, (0.63-1)In/(5-10)In) 4P
Код товару: 4672152
Під замовлення (від 3-х тижнів)
70 168.02 грн
Авт. вимикач EB2S 160/3SA 80A (25kA, (0.63-1)In/фікс.) 3P
Код товару: 4671902
Під замовлення (від 3-х тижнів)
7 056.02 грн
Авт. вимикач EB 2S 160/1LF 50A (25kA, фікс./фікс.) 1P
Код товару: 4671006
Під замовлення (від 3-х тижнів)
3 351.62 грн