Ви дивилися
Каталог товарів
Кабінет покупця
+380672339740
Наша адреса
м.Київ, вул. Пластова, 18, каб.205, 2поверх
Телефони
Графік роботи
  • Пн - Пт
  • 09:00 - 18:00
E-mail
Ми в соцмережах
Перейти до контактів
0 0
Каталог
Головна
Дивилися
20
Закладки
0
Порівняти
0
Контакти

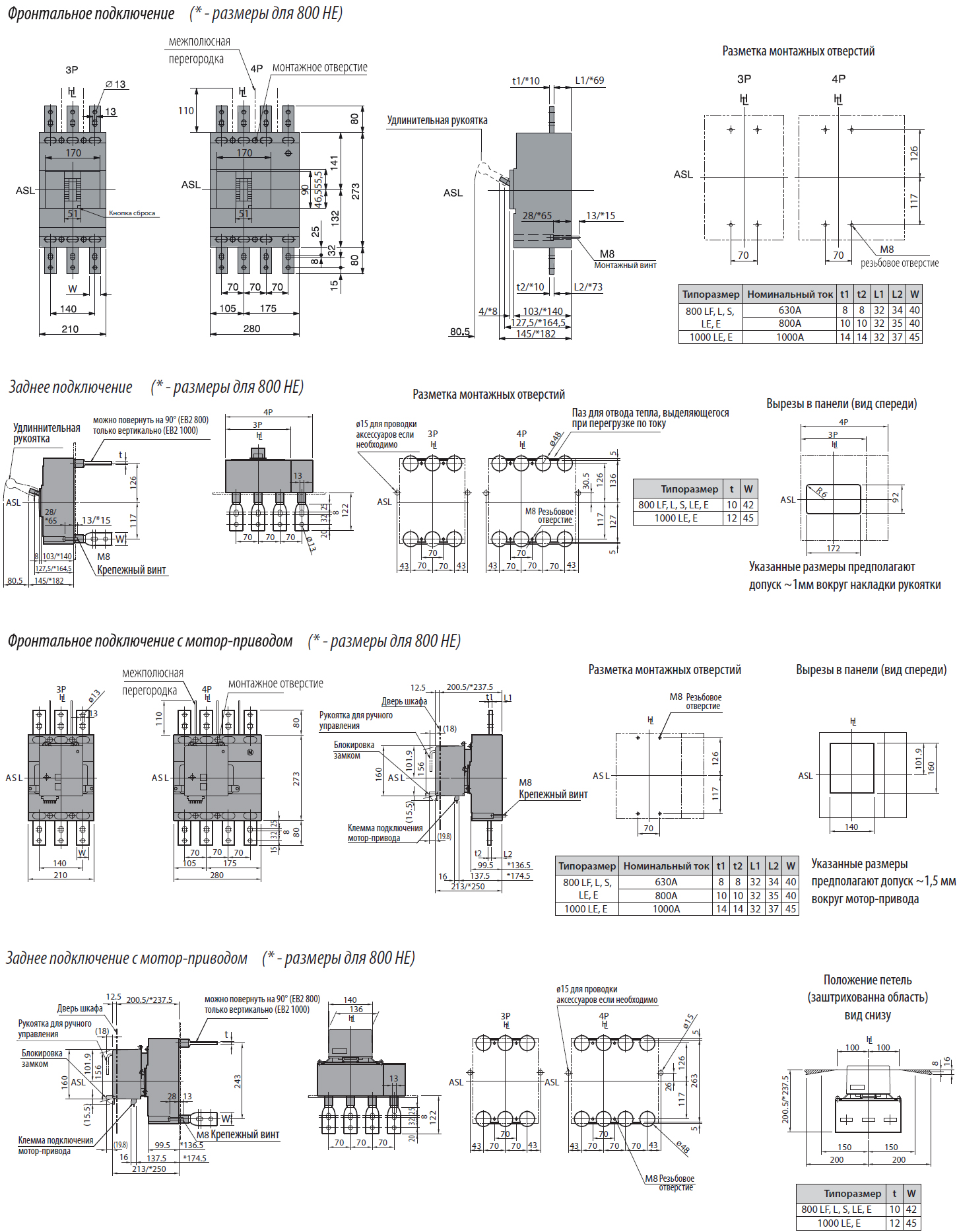
Авт. вимикач EB2 800/4HE 800A (125kA, (0.4-1)In/обираєма) 4P

Виробник: ETI Код товару: 4672203
Все про товар
Опис
Характеристики
Під замовлення (від 3-х тижнів)
215 649.02 грн
EAN:3838895664956 
logis_net_depth:143 mm
logis_net_height:433 mm
logis_net_width:280 mm
Є покажчик розчеплення:Так
Авт. вимикач EB2 800/4HE 800A (125kA, (0.4-1)In/обираєма) 4P
215 649.02 грн
Характеристики
EAN
3838895664956 
logis_net_depth
143 mm
logis_net_height
433 mm
logis_net_width
280 mm
Є покажчик розчеплення
Так
Артикул
4672203
Вага
18.8 kg
Вбудований моторний привід
Ні
Група каталогу
EB2
Діапазон налаштування пристрою захисту від перевантаження
320…800A
Діапазон регулювання спрацьовування без затримки розчеплювача коротк. замикання
4480…9600A
кількість
Кількість полюсів
4
Категорія
Power circuit-breaker for trafo/generator/installation prot.
Класифікація
EC000228
Конструкція приладу
Вбудований пристрій стаціонарного виконання
Моторний привід опціонально
Так
Назва
EB2 800/4HE 800A 4p
Номінальна імпульсна напруга Uimp (kV)
8
Номінальна вимикаюча здатність при короткому замиканні при 415V Icu /Ics (kA)
125/94
Номінальна гранична найбільша вимикаюча здатність Icu при 400 В, 50 Гц
125/94kA
Номінальна напруга ізоляції (V)
800
Номінальна робоча напруга (V AC)
690V
Номінальна робоча напруга (V DC)
n.a.
Номінальний струм (A)
800
Номінальний струм з довгим навантаженням Iu
800A
Регульований або фіксований
обираєма
Регулювання електромагнітного захисту
adjustable
Регулювання короткочасної затримки спрацьовування розчеплювача коротк. замикання
800…8000A
Регулювання теплового захисту
0,4-1
Стандарт
60947
Ступінь захисту IP
IP20
Тариф митниці
85362090 
Тип елемента керування
Клавіша
Тип з'єднання
переднє підключення
Тип приєднання головного електричного ланцюга
Гвинтове з`єднання
Транспортувальне пакування
43 
Ви дивились
Авт. вимикач NBS-E 160/3L LCD 160A (36kA, (0.4-1)In/(1.5-12)In) 3P
Код товару: 4673061
Під замовлення (від 3-х тижнів)
8 330.02 грн
Мікс гориз.: Сходов.вим.+ 1-на розетка з з/к VRHH-3sd (біла/прозора кришка)
Код товару: 4668036
Під замовлення (від 3-х тижнів)
338.12 грн
Авт. вимикач EB2S 160/3LA 25A (16kA, (0.63-1)In/фікс.) 3P
Код товару: 4671879
Під замовлення (від 3-х тижнів)
5 929.02 грн
Авт. вимикач EB2S 160/4LA 100A (16kA, (0.63-1)In/фікс.) 4P
Код товару: 4671893
Під замовлення (від 3-х тижнів)
8 526.02 грн
Авт. вимикач EB2R-M 250/4L 160A (25kA, (0.63-1)In/(13)In, с блоком ПЗВ) 4P
Код товару: 4671587
Під замовлення (від 3-х тижнів)
64 288.02 грн
Ізолююча кришка L-WP-B60/3 3Р (встановлення на верт. профілях, для запезпечення ізоляції шин)
Код товару: 1342181
Під замовлення (від 3-х тижнів)
88.22 грн
Авт. вимикач EB2S 160/3HF 125A (40kA, фікс./фікс.) 3P
Код товару: 4671862
Під замовлення (від 3-х тижнів)
6 370.02 грн
Авт. вимикач EB2 125/3V 100A ((0.63-1)In/(6-12)In) 1000V 3P
Код товару: 4671375
Під замовлення (від 3-х тижнів)
14 749.02 грн
Авт. вимикач EB2 800/4HE 630A (125kA, (0.4-1)In/обираєма) 4P
Код товару: 4672202
Під замовлення (від 3-х тижнів)
215 649.02 грн
Авт. вимикач EB2S 160/3HA 63A (40kA, (0.63-1)In/фікс.) 3P
Код товару: 4671921
Під замовлення (від 3-х тижнів)
7 350.02 грн