Ви дивилися
Каталог товарів
Кабінет покупця
+380672339740
Наша адреса
м.Київ, вул. Пластова, 18, каб.205, 2поверх
Телефони
Графік роботи
  • Пн - Пт
  • 09:00 - 18:00
E-mail
Ми в соцмережах
Перейти до контактів
0 0
Каталог
Головна
Дивилися
20
Закладки
0
Порівняти
0
Контакти

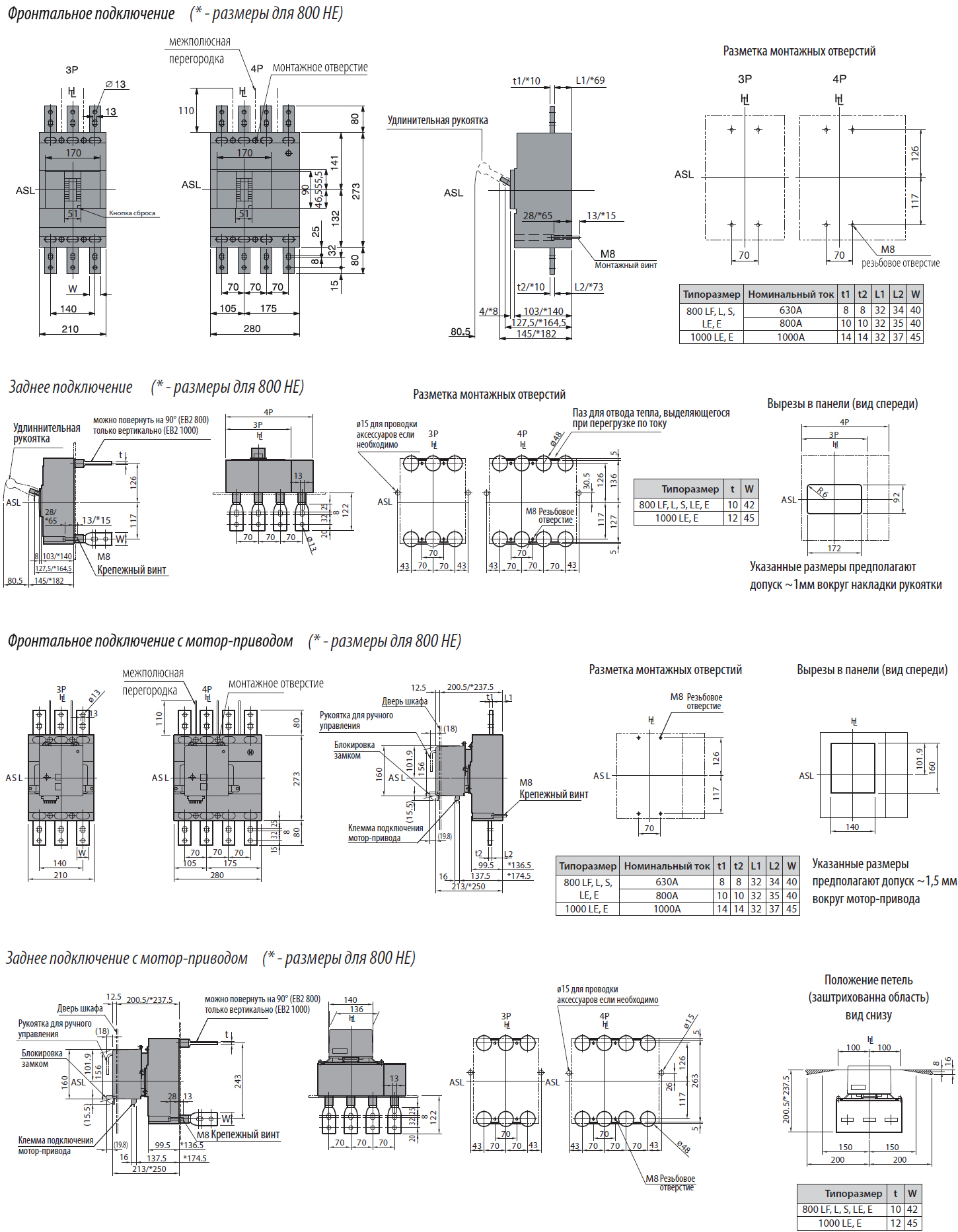
Авт. вимикач EB2 800/4HE 630A (125kA, (0.4-1)In/обираєма) 4P

Виробник: ETI Код товару: 4672202
Все про товар
Опис
Характеристики
Під замовлення (від 3-х тижнів)
215 649.02 грн
EAN:3838895664949 
logis_net_depth:143 mm
logis_net_height:433 mm
logis_net_width:280 mm
Є покажчик розчеплення:Так
Авт. вимикач EB2 800/4HE 630A (125kA, (0.4-1)In/обираєма) 4P
215 649.02 грн
Характеристики
EAN
3838895664949 
logis_net_depth
143 mm
logis_net_height
433 mm
logis_net_width
280 mm
Є покажчик розчеплення
Так
Артикул
4672202
Вага
14.8 kg
Вбудований моторний привід
Ні
Група каталогу
EB2
Діапазон налаштування пристрою захисту від перевантаження
396.9…630A
Діапазон регулювання спрацьовування без затримки розчеплювача коротк. замикання
3150…6300A
кількість
Кількість полюсів
4
Категорія
Power circuit-breaker for trafo/generator/installation prot.
Класифікація
EC000228
Конструкція приладу
Вбудований пристрій стаціонарного виконання
Моторний привід опціонально
Так
Назва
EB2 800/4HE 630A 4p
Номінальна імпульсна напруга Uimp (kV)
8
Номінальна вимикаюча здатність при короткому замиканні при 415V Icu /Ics (kA)
125/94
Номінальна гранична найбільша вимикаюча здатність Icu при 400 В, 50 Гц
125/94kA
Номінальна напруга ізоляції (V)
800
Номінальна робоча напруга (V AC)
690V
Номінальна робоча напруга (V DC)
n.a.
Номінальний струм (A)
630
Номінальний струм з довгим навантаженням Iu
630A
Регульований або фіксований
обираєма
Регулювання електромагнітного захисту
adjustable
Регулювання теплового захисту
0,4-1
Стандарт
60947
Ступінь захисту IP
IP20
Тариф митниці
85362090 
Тип елемента керування
Клавіша
Тип з'єднання
переднє підключення
Тип приєднання головного електричного ланцюга
Гвинтове з`єднання
Транспортувальне пакування
43 
Ви дивились
Авт. вимикач EB2S 160/3HA 63A (40kA, (0.63-1)In/фікс.) 3P
Код товару: 4671921
Під замовлення (від 3-х тижнів)
7 350.02 грн
Авт. вимикач EB2 125/3S 20A (36kA, (0.63-1)In/(6-12)In) 3P
Код товару: 4671041
Під замовлення (від 3-х тижнів)
7 399.02 грн
Авт. вимикач EB2 800/4LE 800A (50kA, (0.4-1)In/обираєма) 4P
Код товару: 4672181
Під замовлення (від 3-х тижнів)
85 799.02 грн
Авт. вимикач EB2S 160/3HA 125A (40kA, (0.63-1)In/фікс.) 3P
Код товару: 4671924
Під замовлення (від 3-х тижнів)
7 448.02 грн
Авт. вимикач EB2R-M 125/4L 50A (25kA, (0.63-1)In/(12)In, с блоком ПЗВ) 4P
Код товару: 4671521
Під замовлення (від 3-х тижнів)
56 056.02 грн
Авт. вимикач NBS-E 250/3H 250A (85kA, (0.4-1)In/(1.5-10)Ir) 3P
Код товару: 4673083
Під замовлення (від 3-х тижнів)
9 555.02 грн
Авт. вимикач EB2 125/3H 63A (65kA, (0.63-1)In/(6-12)In) 3P
Код товару: 4672104
Під замовлення (від 3-х тижнів)
8 379.02 грн
Роз'єднувач навантаження LAS 3Р D/Y-R 16 "1-0" 16A (на двері шафи, жовто-червоний)
Код товару: 4661205
Під замовлення (від 3-х тижнів)
1 288.72 грн
Авт. вимикач EB2 125/3H 125A (65kA, (0.63-1)In/(6-10)In) 3P
Код товару: 4672106
Під замовлення (від 3-х тижнів)
8 477.02 грн
Міні-запобіжник CH 5x20 F 1A 250V UL
Код товару: 6710158
Під замовлення (від 3-х тижнів)
7.86 грн