Ви дивилися
Каталог товарів
Кабінет покупця
+380672339740
Наша адреса
м.Київ, вул. Пластова, 18, каб.205, 2поверх
Телефони
Графік роботи
  • Пн - Пт
  • 09:00 - 18:00
E-mail
Ми в соцмережах
Перейти до контактів
0 0
Каталог
Головна
Дивилися
20
Закладки
0
Порівняти
0
Контакти

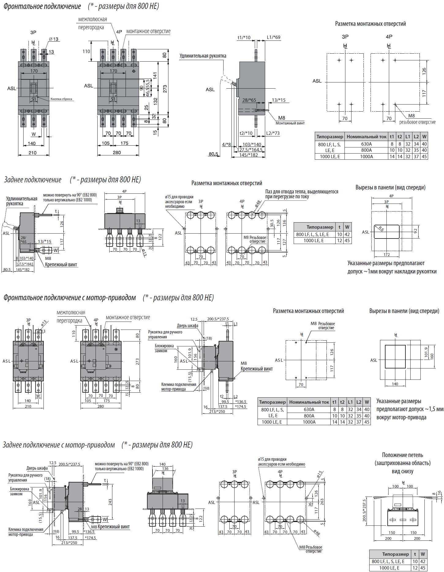
Авт. вимикач EB2 800/3S 800A (50kA, (0.63-1)In/(5-10)In) 3P

Виробник: ETI Код товару: 4672161
Все про товар
Опис
Характеристики
В наявності
41 699.02 грн
EAN:3838895664819 
logis_net_depth:143 mm
logis_net_height:433 mm
logis_net_width:210 mm
Є покажчик розчеплення:Так
Авт. вимикач EB2 800/3S 800A (50kA, (0.63-1)In/(5-10)In) 3P
41 699.02 грн
Характеристики
EAN
3838895664819 
logis_net_depth
143 mm
logis_net_height
433 mm
logis_net_width
210 mm
Є покажчик розчеплення
Так
Артикул
4672161
Вага
8.5 kg
Вбудований моторний привід
Ні
Група каталогу
EB2
Діапазон налаштування пристрою захисту від перевантаження
504…800A
Діапазон регулювання спрацьовування без затримки розчеплювача коротк. замикання
2520…8000A
кількість
Кількість полюсів
3
Категорія
Power circuit-breaker for trafo/generator/installation prot.
Класифікація
EC000228
Конструкція приладу
Вбудований пристрій стаціонарного виконання
Моторний привід опціонально
Так
Назва
EB2 800/3S 800A 3p
Номінальна імпульсна напруга Uimp (kV)
8
Номінальна вимикаюча здатність при короткому замиканні при 415V Icu /Ics (kA)
50/50
Номінальна гранична найбільша вимикаюча здатність Icu при 400 В, 50 Гц
50kA
Номінальна напруга ізоляції (V)
800
Номінальна робоча напруга (V AC)
690V
Номінальна робоча напруга (V DC)
250V
Номінальний струм (A)
800
Номінальний струм з довгим навантаженням Iu
800A
Регульований або фіксований
обираєма
Регулювання електромагнітного захисту
5-10
Регулювання теплового захисту
0,63-1
Стандарт
60947
Ступінь захисту IP
IP20
Тариф митниці
85362090 
Тип елемента керування
Важільний
Тип з'єднання
переднє підключення
Тип приєднання головного електричного ланцюга
Гвинтове з`єднання
Транспортувальне пакування
94 
Ви дивились
Розетка в коробці внутрішньої установки (силовий роз'єм) EZB-3243 IP44 (32A, 400V, 3P+PE)
Код товару: 4482100
Під замовлення (від 3-х тижнів)
1 744.42 грн
Розетка настінна (силовий роз'єм) EZH-6343 IP67 (63A, 400V, 3P+PE)
Код товару: 4482046
В наявності
2 028.62 грн
Контактор CEM 18.01 400V AC
Код товару: 4644114
Під замовлення (від 3-х тижнів)
1 151.52 грн
Контактор CEM 12.01 42V AC
Код товару: 4643115
Під замовлення (від 3-х тижнів)
1 068.22 грн
Авт. вимикач EB2 400/4S 250A (50kA, (0.63-1)In/(6-12)In) 4P
Код товару: 4671103
Під замовлення (від 3-х тижнів)
30 772.02 грн
Диф. автоматичний вимикач KZS-2M B 10/0,01 тип A (10kA)
Код товару: 2173212
Під замовлення (від 3-х тижнів)
2 200.12 грн
Мотор-привод MO2 1250&1600 AC240V
Код товару: 4672350
В наявності
48 510.02 грн
Контактор модульний R 20-11 24V
Код товару: 2461221
Під замовлення (від 3-х тижнів)
1 029.02 грн
Шина живлення IZ 16/2F/44 (18+9) (16мм2, 2P, 0.99м, Fork., 44mod.)
Код товару: 2921233
Під замовлення (від 3-х тижнів)
1 979.62 грн
Контактор модульний R 63-31 230V
Код товару: 2463460
Під замовлення (від 3-х тижнів)
2 895.92 грн