Ви дивилися
Каталог товарів
Кабінет покупця
+380672339740
Наша адреса
м.Київ, вул. Пластова, 18, каб.205, 2поверх
Телефони
Графік роботи
  • Пн - Пт
  • 09:00 - 18:00
E-mail
Ми в соцмережах
Перейти до контактів
0 0
Каталог
Головна
Дивилися
20
Закладки
0
Порівняти
0
Контакти

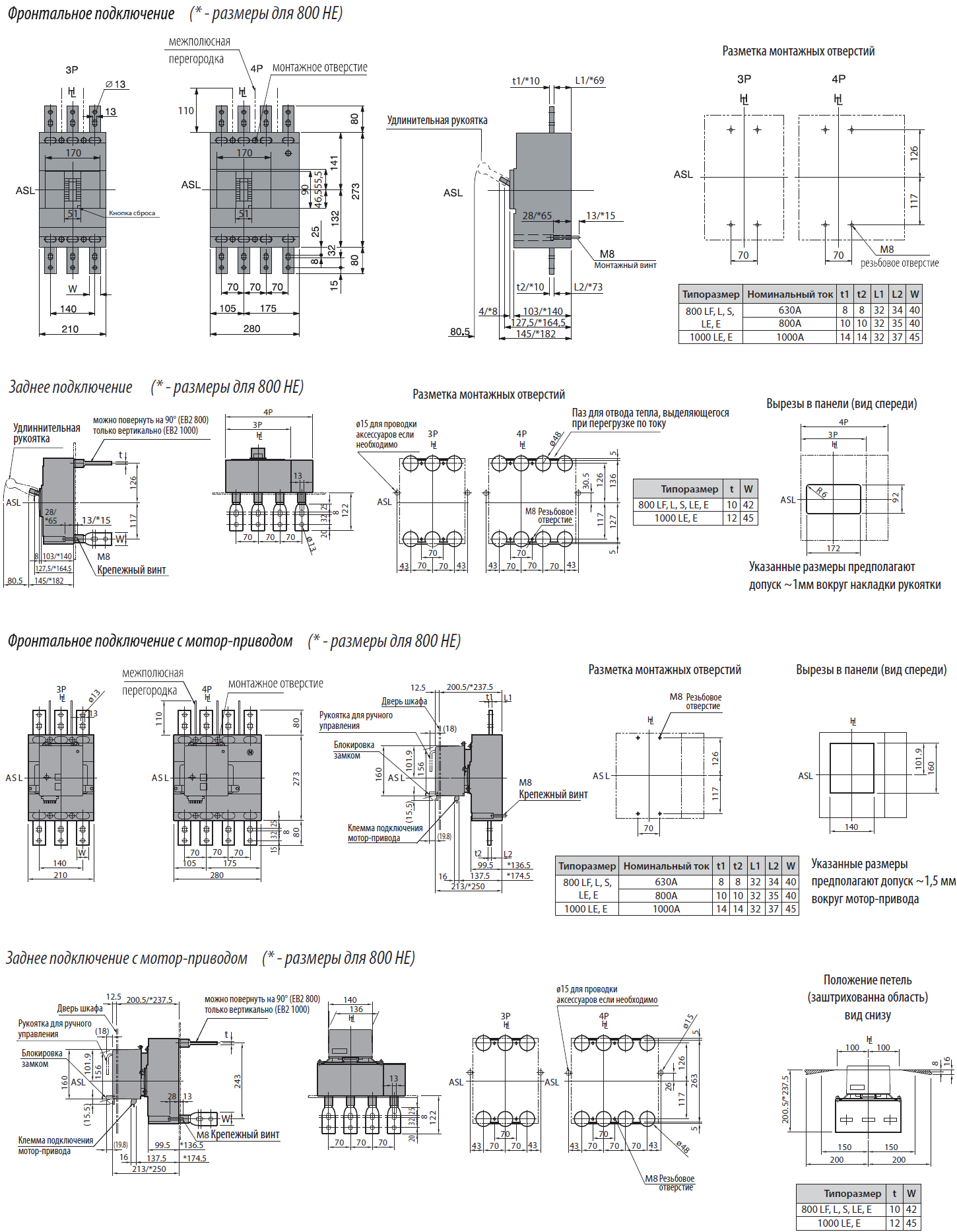
Авт. вимикач EB2 800/3S 630A (50kA, (0.63-1)In/(5-10)In) 3P

Виробник: ETI Код товару: 4672160
Все про товар
Опис
Характеристики
В наявності
39 249.02 грн
EAN:3838895664802 
logis_net_depth:143 mm
logis_net_height:433 mm
logis_net_width:210 mm
Є покажчик розчеплення:Так
Авт. вимикач EB2 800/3S 630A (50kA, (0.63-1)In/(5-10)In) 3P
39 249.02 грн
Характеристики
EAN
3838895664802 
logis_net_depth
143 mm
logis_net_height
433 mm
logis_net_width
210 mm
Є покажчик розчеплення
Так
Артикул
4672160
Вага
8.5 kg
Вбудований моторний привід
Ні
Група каталогу
EB2
Діапазон налаштування пристрою захисту від перевантаження
396.9…630A
Діапазон регулювання спрацьовування без затримки розчеплювача коротк. замикання
3150…6300A
кількість
Кількість полюсів
3
Категорія
Power circuit-breaker for trafo/generator/installation prot.
Класифікація
EC000228
Конструкція приладу
Вбудований пристрій стаціонарного виконання
Моторний привід опціонально
Так
Назва
EB2 800/3S 630A 3p
Номінальна імпульсна напруга Uimp (kV)
8
Номінальна вимикаюча здатність при короткому замиканні при 415V Icu /Ics (kA)
50/50
Номінальна гранична найбільша вимикаюча здатність Icu при 400 В, 50 Гц
50kA
Номінальна напруга ізоляції (V)
800
Номінальна робоча напруга (V AC)
690V
Номінальна робоча напруга (V DC)
250V
Номінальний струм (A)
630
Номінальний струм з довгим навантаженням Iu
630A
Регульований або фіксований
обираєма
Регулювання електромагнітного захисту
5-10
Регулювання теплового захисту
0,63-1
Стандарт
60947
Ступінь захисту IP
IP20
Тариф митниці
85362090 
Тип елемента керування
Важільний
Тип з'єднання
переднє підключення
Тип приєднання головного електричного ланцюга
Гвинтове з`єднання
Транспортувальне пакування
94 
Ви дивились
Авт. вимикач EB2 250/3H 250A (65kA, (0.63-1)In/(6-10)In) 3P
Код товару: 4672132
Під замовлення (від 3-х тижнів)
14 308.02 грн
Автоматичний вимикач 1P 10kA D-40A 1M
Код товару: NDN140
В наявності
481.68 грн
Вимикач навантаження LBS 4P 630 ("1-0", 630А)
Код товару: 4661464
Під замовлення (від 3-х тижнів)
16 121.02 грн
Контактор CES 75.22 (37 kW) 24V AC
Код товару: 4646562
Під замовлення (від 3-х тижнів)
5 635.02 грн
Електронний блок стану плавкої вставки EFMU KVL-1 3P
Код товару: 1690968
Під замовлення (від 3-х тижнів)
27 097.02 грн
Перемикач CS 40 90 PNGLK (1p_"0-1"корп./IP65"_ж/к_40A_блок.)
Код товару: 4773175
В наявності
1 362.22 грн
Авт. вимикач ETIMAT 6 1p+N C 32А (6 kA)
Код товару: 2142519
Під замовлення (від 3-х тижнів)
504.71 грн
Реле диференційне (ПЗВ) 4р EFI-P4 63/0,3 тип AC (10kA)
Код товару: 2061633
В наявності
2 523.52 грн
Обмежувач струму OSP-6 6A 3p (6kA)
Код товару: 2185030
Під замовлення (від 3-х тижнів)
720.32 грн
Диф. автоматичний вимикач KZS-2M B 6/0,3 тип AC (10kA)
Код товару: 2173301
Під замовлення (від 3-х тижнів)
1 989.42 грн