Ви дивилися
Каталог товарів
Кабінет покупця
+380672339740
Наша адреса
м.Київ, вул. Пластова, 18, каб.205, 2поверх
Телефони
Графік роботи
  • Пн - Пт
  • 09:00 - 18:00
E-mail
Ми в соцмережах
Перейти до контактів
0 0
Каталог
Головна
Дивилися
20
Закладки
0
Порівняти
0
Контакти

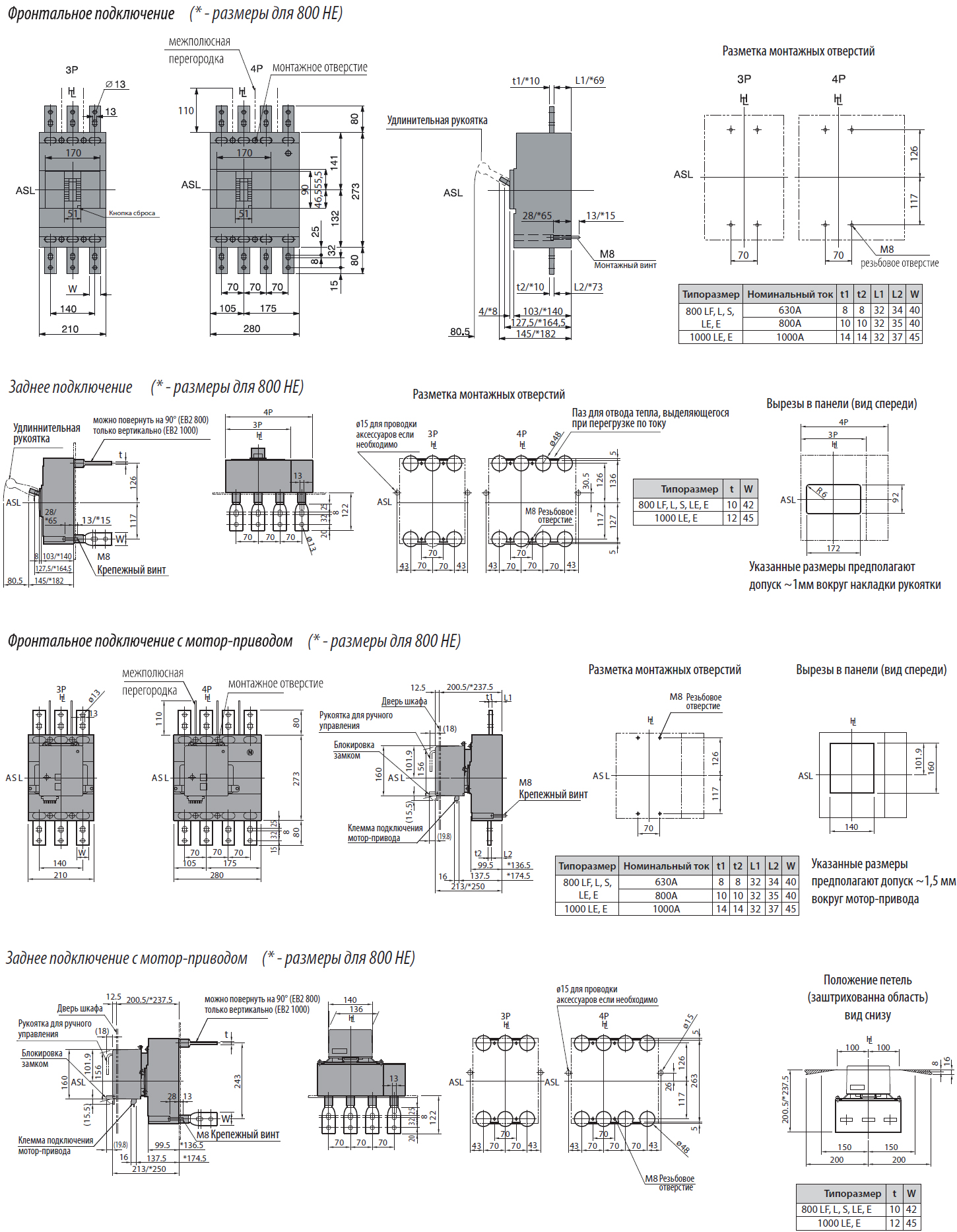
Авт. вимикач EB2 800/3HE 630A (125kA, (0.4-1)In/обираєма) 3P

Виробник: ETI Код товару: 4672200
Все про товар
Опис
Характеристики
Під замовлення (від 3-х тижнів)
162 239.02 грн
EAN:3838895664925 
logis_net_depth:143 mm
logis_net_height:433 mm
logis_net_width:210 mm
Є покажчик розчеплення:Так
Авт. вимикач EB2 800/3HE 630A (125kA, (0.4-1)In/обираєма) 3P
162 239.02 грн
Характеристики
EAN
3838895664925 
logis_net_depth
143 mm
logis_net_height
433 mm
logis_net_width
210 mm
Є покажчик розчеплення
Так
Артикул
4672200
Вага
14.8 kg
Вбудований моторний привід
Ні
Група каталогу
EB2
Діапазон налаштування пристрою захисту від перевантаження
396.9…630A
Діапазон регулювання спрацьовування без затримки розчеплювача коротк. замикання
3150…6300A
кількість
Кількість полюсів
3
Категорія
Power circuit-breaker for trafo/generator/installation prot.
Класифікація
EC000228
Конструкція приладу
Вбудований пристрій стаціонарного виконання
Моторний привід опціонально
Так
Назва
EB2 800/3HE 630A 3p
Номінальна імпульсна напруга Uimp (kV)
8
Номінальна вимикаюча здатність при короткому замиканні при 415V Icu /Ics (kA)
125/94
Номінальна гранична найбільша вимикаюча здатність Icu при 400 В, 50 Гц
125/94kA
Номінальна напруга ізоляції (V)
800
Номінальна робоча напруга (V AC)
690V
Номінальна робоча напруга (V DC)
n.a.
Номінальний струм (A)
630
Номінальний струм з довгим навантаженням Iu
630A
Регульований або фіксований
обираєма
Регулювання електромагнітного захисту
adjustable
Регулювання теплового захисту
0,4-1
Стандарт
60947
Ступінь захисту IP
IP20
Тариф митниці
85362090 
Тип елемента керування
Клавіша
Тип з'єднання
переднє підключення
Тип приєднання головного електричного ланцюга
Гвинтове з`єднання
Транспортувальне пакування
54 
Ви дивились
Авт. вимикач EB2 400/3S 250A (50kA, (0.63-1)In/(6-12)In) 3P
Код товару: 4671101
Під замовлення (від 3-х тижнів)
22 295.02 грн
Авт. вимикач EB2S 160/4SA 125A (25kA, (0.63-1)In/фікс.) 4P
Код товару: 4671914
Під замовлення (від 3-х тижнів)
9 261.02 грн
Авт. вимикач EB2S 160/4SF 16A (25kA, фікс./фікс.) 4P
Код товару: 4671840
Під замовлення (від 3-х тижнів)
5 635.02 грн
Клема гвинтова заземлювальна ESC-TEC.16/O (16 мм2, жовто-зел.)
Код товару: 3903072
В наявності
139.67 грн
Клема гвинтова трирівнева VS 2,5 NAI 3 + зі з'єдн. містком (2,5 mm2_червона)
Код товару: 3901342
Під замовлення (від 3-х тижнів)
176.42 грн
Авт. вимикач EB2 250/3L 160A (25kA, (0.63-1)In/(6-13)In) 3P
Код товару: 4671071
Під замовлення (від 3-х тижнів)
11 662.02 грн
Захисна кришка PRS KVL-1 1P (довжина 42)
Код товару: 1690959
Під замовлення (від 3-х тижнів)
264.62 грн
Авт. вимикач EB2S 160/3HA 100A (40kA, (0.63-1)In/фікс.) 3P
Код товару: 4671923
Під замовлення (від 3-х тижнів)
7 448.02 грн
Конденсаторна батарея LPC 4kVAr (460V)
Код товару: 4656722
Під замовлення (від 3-х тижнів)
1 352.42 грн
Щит пласт. зовнішн. вик. ECT 3x18PO MEDIA-MOD (DIN_18 мод., 8xRJ, розетка 230V, білі дверцята)
Код товару: 1101315
Під замовлення (від 3-х тижнів)
2 797.92 грн